Проекты
меню
Санкт-Петербург
Санкт-Петербург
Москва
Новороссийск
кирпич
газобетон
каркас
Стоимость строительства
Цена по запросу

Выезд на участок для привязки дома бесплатный!

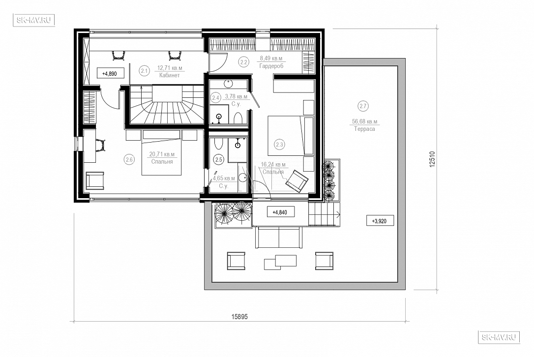
Двухэтажный дом с террасой барбекю, баней и автонавесом

446,46 м2
446,46 м2
2 этажа
Аврора 16
446,46 м2
2 этажа
проект
Аврора 16
Стоимость строительства
Цена по запросу

О проекте

Площади, м2
S дома
446,46
S террасы
165,20
S гаража
43,54
S навеса
48,14
Атрибуты
Спальни
4
Санузлы
6
Гардеробные
3
Особенности проекта
Раздвижные окна террас и веранд
Терраса барбекю с печью
Гараж
Гардеробная
Кабинет
Крыльцо
Мастер-спальня
Навес для автомобиля
Сауна
Спальня на первом этаже
Терраса
Описание проекта

Проект двухэтажного загородного дома «Аврора» с большой террасой барбекю, баней, гаражом и автонавесом. Площадь дома — 446,46 кв.м.

Дом выполнен в современном стиле, что подчеркивают такие элементы, как плоская кровля, минималистичная облицовка, широкие панорамные окна в пол. Экстерьер отличается сдержанными натуральными цветами: облицовочный кирпич смешанных оттенков светло-коричневого тона, темное и светлое дерево.

Особенности проекта:

  1. В доме предусмотрены спальни трех типов: стандартная комната, спальня с гардеробной и мастер-спальня с гардеробной и ванной.

  2. Гостиная-столовая дополняет камином, что добавляет тепла и уюта центральному пространству дома.

  3. Кабинет со входом из спальни подходит для комфортной работы в любое время.

  4. Проектом предусмотрена баня с душевой зоной, парной и зоной отдыха.

  5. В доме запланированы хозяйственные помещения: просторная постирочная, где удобно стирать, сушить и гладить, а также котельная.

Строительство дома может быть выполнено из газобетона, кирпича или по панельно-каркасной технологии на базе индивидуального расчетного фундамента УШП PRO (утеплённая шведская плита PRO).

Помимо проектирования и возведения коробки дома наши специалисты выполняют другие работы вплоть до сдачи дома «под ключ»:

  • фасадная отделка,

  • проекты инженерных сетей,

  • дизайн-проекты интерьеров,

  • работы по внутренней отделке,

  • работы по ландшафтному дизайну, озеленению и благоустройству территории.

Проект адаптируется под запрос конкретной семьи и индивидуальные особенности участка. Подробнее по ссылке.


План

Фасады

Входит в комплектацию
За дополнительную плату
Не входит в комплектацию

Технология и стоимость строительства

Выберите технологию строительства
Коробка дома на фундаменте под кровлей
Теплый контур без фасадной отделки
Теплый контур с фасадной отделкой
Коробка дома на фундаменте под кровлей
Теплый контур без фасадной отделки
Теплый контур с фасадной отделкой
18 Фундамент
Утепленная плита*, высота цоколя 320 мм, с утеплением 200 мм, подготовка песчаного основания 500 мм с прокладкой закладных гильз для ввода-вывода инженерных коммуникаций и устройством стяжки пола 120 мм с системой жидкостного теплого пола.
Входит в комплектацию
Входит в комплектацию
Входит в комплектацию
28 Несущие и ограждающие конструкции
Монтаж обвязочной доски.
Входит в комплектацию
Входит в комплектацию
Входит в комплектацию
Наружные стены — каркас заводского изготовления из сухой строганной доски 45 × 145–195 мм.
Входит в комплектацию
Входит в комплектацию
Входит в комплектацию
Внутренние несущие стены — каркас из сухой строганной доски 45 × 145 мм.
Входит в комплектацию
Входит в комплектацию
Входит в комплектацию
Стропильная система заводского изготовления (доска 45 × 195 мм, сухая, строганная) с применением балок из клееного бруса или бруса LVL.
Входит в комплектацию
Входит в комплектацию
Входит в комплектацию
Ветро-гидроизоляционная пленка с кровельной обрешеткой.
Входит в комплектацию
Входит в комплектацию
Входит в комплектацию
Контробрешетка кровельная из сухой строганной доски 45 × 45 мм.
Входит в комплектацию
Входит в комплектацию
Входит в комплектацию
38 Межэтажные (чердачные) перекрытия
По деревянным балкам — доска 45 × 195 мм, сухая, строганная.
Входит в комплектацию
Входит в комплектацию
Входит в комплектацию
48 Межэтажная лестница (для двухэтажных домов)
Деревянная — строительная (черновая, маршевая).
Входит в комплектацию
Входит в комплектацию
Входит в комплектацию
58 Кровельное покрытие
Кровельное покрытие из металлочерепицы Металл Профиль.
Входит в комплектацию
Входит в комплектацию
Входит в комплектацию
68 Утепление и звукоизоляция несущих и ограждающих конструкций
Утепление наружных стен заполнением базальтовым утеплителем 150–200 мм, с обшивкой изнутри пароизоляционной пленкой с проклейкой швов, снаружи — ветрозащитой Isoplaat 25 мм и утеплением Isoplaat 25 мм.
Не входит в комплектацию
Входит в комплектацию
Входит в комплектацию
Внутренние несущие стены с заполнением базальтовым утеплителем 150 мм с обшивкой с двух сторон пароизоляционной пленкой.
Не входит в комплектацию
Входит в комплектацию
Входит в комплектацию
Звукоизоляция межэтажных перекрытий и межкомнатных перегородок — базальтовый утеплитель 150 мм, настил чернового пола из OSB-3 18 мм по пошаговой обрешетке 20 × 90 мм.
Не входит в комплектацию
Входит в комплектацию
Входит в комплектацию
Утепление стропильной системы минераловатным утеплителем 250 мм.
Не входит в комплектацию
Входит в комплектацию
Входит в комплектацию
Доставка в пределах 50 км от КАД, МКАД.
Входит в комплектацию
Входит в комплектацию
Входит в комплектацию
78 Окна и двери
Оконные и балконные дверные изделия из ПВХ профиля VEKA Softline 70 мм, фурнитура — SIEGENIA AUBI TITAN_AF, двухкамерный стеклопакет — 4i-14a-4-14-4, микропроветривание, без противомоскитных сеток, цвет — белый/белый, без шпрос в стеклопакетах. Доставка и разгрузка до оконных проемов.
За дополнительную плату
Входит в комплектацию
Входит в комплектацию
Внешние дверные изделия Jeld-Wen — дверной блок входной, теплоизоляционный F2000, белый, глухой 21 × 9,1 мм, замок Abloy LС200, 3 петли с регулировкой в 2-х направлениях, порог с алюминиевой накладкой. Установка дверных доводчиков на внешние двери.
За дополнительную плату
Входит в комплектацию
Входит в комплектацию
Закрытие оконных и дверных проемов пленкой.
Входит в комплектацию
Не входит в комплектацию
Не входит в комплектацию
88 Фасадные работы и отделка на выбор
Фасадная отделка.
Не входит в комплектацию
За дополнительную плату
Входит в комплектацию
Отделка карнизных свесов, потолков террас и крылец.
Не входит в комплектацию
За дополнительную плату
Входит в комплектацию
Оформление оконных и дверных проемов, монтаж угловых наличников.
Не входит в комплектацию
За дополнительную плату
Входит в комплектацию
Подготовка и покраска мауэрлатных и коньковых балок.
Входит в комплектацию
Входит в комплектацию
Входит в комплектацию
Установка межэтажных металлических отливов (только для комбинированных фасадных отделок).
Не входит в комплектацию
Не входит в комплектацию
Входит в комплектацию
Устройство лаг пола для террасы. Отделка полов террасы террасной доской из лиственницы с ограждениями (для проектов, где терраса является конструктивным элементом дома).
Не входит в комплектацию
За дополнительную плату
Входит в комплектацию
Устройство лаг балкона и отделка полов балкона террасной доской из лиственницы с ограждениями.
Не входит в комплектацию
За дополнительную плату
Входит в комплектацию
Гидроизоляция полов балконов.
Не входит в комплектацию
Не входит в комплектацию
За дополнительную плату
Технический надзор.
Входит в комплектацию
Входит в комплектацию
Входит в комплектацию
Выезд инженера на строительный объект для привязки пятна застройки и оценки состояния участка и грунтов.
Входит в комплектацию
Входит в комплектацию
Входит в комплектацию
Проектная документация КЖ (конструкции железобетонные).
Входит в комплектацию
Входит в комплектацию
Входит в комплектацию
Проектная документация КД (конструкции деревянные).
Входит в комплектацию
Входит в комплектацию
Входит в комплектацию
Инструкция по эксплуатации каркасного дома.
Входит в комплектацию
Входит в комплектацию
Входит в комплектацию
Гарантия на все виды работ произведенные по договору строительного подряда — 5 лет.
Входит в комплектацию
Входит в комплектацию
Входит в комплектацию
Монтаж и доставка в пределах 50 км от КАД, МКАД.
Входит в комплектацию
Входит в комплектацию
Входит в комплектацию
Организация проживания рабочих.
За дополнительную плату
За дополнительную плату
За дополнительную плату
Уборка территории, погрузка мусора в пухто.
За дополнительную плату
За дополнительную плату
За дополнительную плату
Свайный фундамент — буронабивные сваи для террас.
За дополнительную плату
За дополнительную плату
Входит в комплектацию
Подготовка песчанного основания фундамента.
За дополнительную плату
За дополнительную плату
За дополнительную плату
Устройство дренажной системы.
За дополнительную плату
За дополнительную плату
За дополнительную плату
Устройство ливневой системы.
Не входит в комплектацию
Не входит в комплектацию
За дополнительную плату
Отделка цоколя фундамента искусственным камнем.
Не входит в комплектацию
Не входит в комплектацию
За дополнительную плату
Водосточная система.
Не входит в комплектацию
Не входит в комплектацию
За дополнительную плату
Вентиляционные кровельные проходные элементы.
За дополнительную плату
За дополнительную плату
За дополнительную плату
Снегозадержатели.
За дополнительную плату
За дополнительную плату
За дополнительную плату
Односторонняя ламинация оконных и внешних дверных изделий.
Не входит в комплектацию
За дополнительную плату
За дополнительную плату
Мансардные окна Velux.
За дополнительную плату
За дополнительную плату
За дополнительную плату
Люк чердачный Fakro утепленный 600 × 1200 мм.
Не входит в комплектацию
За дополнительную плату
За дополнительную плату
Молниезащита.
Не входит в комплектацию
Не входит в комплектацию
За дополнительную плату
Контурное заземление.
За дополнительную плату
За дополнительную плату
За дополнительную плату
Коробка дома на фундаменте под кровлей
Теплый контур без фасадной отделки
Теплый контур с фасадной отделкой
Коробка дома на фундаменте под кровлей
Теплый контур без фасадной отделки
Теплый контур с фасадной отделкой
18 Фундамент
Утепленная плита*, высота цоколя 450 мм, с утеплением 200 мм, с двойным армированием, подготовка песчаного основания 500 мм с прокладкой закладных гильз для ввода-вывода инженерных коммуникаций и устройством стяжки пола с системой жидкостного теплого пола.
Входит в комплектацию
Входит в комплектацию
Входит в комплектацию
28 Несущие и ограждающие конструкции
Наружные стены выполнены кладкой из газобетонных блоков на клеевом растворе толщиной от 300 мм.
Входит в комплектацию
Входит в комплектацию
Входит в комплектацию
Внутренние несущие стены выполнены кладкой из газобетонных блоков на клеевом растворе толщиной 200–250 мм.
Входит в комплектацию
Входит в комплектацию
Входит в комплектацию
Устройство ж.б. пояса 120 мм по периметру несущих стен перед монтажом стропильной системы.
Входит в комплектацию
Входит в комплектацию
Входит в комплектацию
Стропильная система заводского изготовления (доска 45 × 195 мм, сухая, строганная) с применением балок из клееного бруса или бруса LVL.
Входит в комплектацию
Входит в комплектацию
Входит в комплектацию
Ветро-гидроизоляционная пленка с кровельной обрешеткой.
Входит в комплектацию
Входит в комплектацию
Входит в комплектацию
Контробрешетка кровельная из сухой строганной доски 45 × 45 мм.
Входит в комплектацию
Входит в комплектацию
Входит в комплектацию
38 Межэтажные (чердачные) перекрытия
Для одноэтажных домов чердачные перекрытия по деревянным балкам — доска 45 × 195 мм, сухая, строганная.
Входит в комплектацию
Входит в комплектацию
Входит в комплектацию
Монолитные ж/б межэтажные перекрытия 180–200 мм для двухэтажных домов.
Входит в комплектацию
Входит в комплектацию
Входит в комплектацию
48 Межэтажная лестница (для двухэтажных домов)
Деревянная — строительная (черновая, маршевая).
Входит в комплектацию
Входит в комплектацию
Входит в комплектацию
Монолитная ж/б лестница — строительная (черновая, маршевая).
За дополнительную плату
За дополнительную плату
За дополнительную плату
58 Кровельное покрытие
Кровельное покрытие из металлочерепицы Металл Профиль.
Входит в комплектацию
Входит в комплектацию
Входит в комплектацию
68 Утепление и звукоизоляция несущих и ограждающих конструкций
Утепление наружных стен минераловатными плитами, либо фасадным пенополистиролом в зависимости от варианта фасадной отделки.
Не входит в комплектацию
За дополнительную плату
Входит в комплектацию
Звукоизоляция межэтажных перекрытий — базальтовый утеплитель 150 мм, настил чернового пола из OSB-3 18 мм по пошаговой обрешетке 20 × 90 мм (в зависимости от выбранной конструкции межэтажных перекрытий).
Не входит в комплектацию
За дополнительную плату
Входит в комплектацию
Утепление стропильной системы минераловатным утеплителем 250 мм.
Не входит в комплектацию
Входит в комплектацию
Входит в комплектацию
78 Окна и двери
Оконные и балконные дверные изделия из ПВХ профиля VEKA Softline 70 мм, фурнитура — SIEGENIA AUBI TITAN_AF, двухкамерный стеклопакет — 4i-14a-4-14-4, микропроветривание, без противомоскитных сеток, цвет — белый/белый, без шпрос в стеклопакетах. Доставка и разгрузка до оконных проемов.
За дополнительную плату
Входит в комплектацию
Входит в комплектацию
Внешние дверные изделия Jeld-Wen — дверной блок входной, теплоизоляционный F2000, белый, глухой 21 × 9,1 мм, замок Abloy LС200, 3 петли с регулировкой в 2-х направлениях, порог с алюминиевой накладкой. Установка дверных доводчиков на внешние двери.
За дополнительную плату
Входит в комплектацию
Входит в комплектацию
Закрытие оконных и дверных проемов пленкой.
Входит в комплектацию
Не входит в комплектацию
Не входит в комплектацию
88 Фасадные работы и отделка на выбор
Фасадная отделка.
Не входит в комплектацию
За дополнительную плату
Входит в комплектацию
Отделка карнизных свесов, потолков террас и крылец.
Не входит в комплектацию
За дополнительную плату
Входит в комплектацию
Оформление оконных и дверных проемов, монтаж угловых наличников.
Не входит в комплектацию
За дополнительную плату
Входит в комплектацию
Подготовка и покраска мауэрлатных и коньковых балок.
Входит в комплектацию
Входит в комплектацию
Входит в комплектацию
Установка межэтажных металлических отливов (только для комбинированных фасадных отделок).
Не входит в комплектацию
Не входит в комплектацию
Входит в комплектацию
Устройство лаг пола для террасы. Отделка полов террасы террасной доской из лиственницы с ограждениями (для проектов, где терраса является конструктивным элементом дома).
Не входит в комплектацию
За дополнительную плату
Входит в комплектацию
Устройство лаг балкона и отделка полов балкона террасной доской из лиственницы с ограждениями.
Не входит в комплектацию
За дополнительную плату
Входит в комплектацию
Гидроизоляция полов балконов.
Не входит в комплектацию
Не входит в комплектацию
За дополнительную плату
Технический надзор.
Входит в комплектацию
Входит в комплектацию
Входит в комплектацию
Выезд инженера на строительный объект для привязки пятна застройки и оценки состояния участка и грунтов.
Входит в комплектацию
Входит в комплектацию
Входит в комплектацию
Проектная документация КЖ (конструкции железобетонные).
Входит в комплектацию
Входит в комплектацию
Входит в комплектацию
Проектная документация КД (конструкции деревянные).
Входит в комплектацию
Входит в комплектацию
Входит в комплектацию
Проектная документация АC (архитектурно строительные чертежи).
Входит в комплектацию
Входит в комплектацию
Входит в комплектацию
Инструкция по эксплуатации газобетонного дома.
Входит в комплектацию
Входит в комплектацию
Входит в комплектацию
Гарантия на все виды работ произведенные по договору строительного подряда — 5 лет.
Входит в комплектацию
Входит в комплектацию
Входит в комплектацию
Монтаж и доставка в пределах 50 км от КАД, МКАД.
Входит в комплектацию
Входит в комплектацию
Входит в комплектацию
Организация проживания рабочих.
За дополнительную плату
За дополнительную плату
За дополнительную плату
Уборка территории, погрузка мусора в пухто.
За дополнительную плату
За дополнительную плату
За дополнительную плату
Свайный фундамент — буронабивные сваи для террас.
За дополнительную плату
За дополнительную плату
Входит в комплектацию
Подготовка песчанного основания фундамента.
За дополнительную плату
За дополнительную плату
За дополнительную плату
Устройство дренажной системы.
За дополнительную плату
За дополнительную плату
За дополнительную плату
Устройство ливневой системы.
Не входит в комплектацию
Не входит в комплектацию
За дополнительную плату
Отделка цоколя фундамента искусственным камнем.
Не входит в комплектацию
Не входит в комплектацию
За дополнительную плату
Водосточная система.
Не входит в комплектацию
Не входит в комплектацию
За дополнительную плату
Вентиляционные кровельные проходные элементы.
За дополнительную плату
За дополнительную плату
За дополнительную плату
Снегозадержатели.
За дополнительную плату
За дополнительную плату
За дополнительную плату
Односторонняя ламинация оконных и внешних дверных изделий.
Не входит в комплектацию
За дополнительную плату
За дополнительную плату
Мансардные окна Velux.
За дополнительную плату
За дополнительную плату
За дополнительную плату
Люк чердачный Fakro утепленный 600 × 1200 мм.
Не входит в комплектацию
За дополнительную плату
За дополнительную плату
Молниезащита.
Не входит в комплектацию
Не входит в комплектацию
За дополнительную плату
Контурное заземление.
За дополнительную плату
За дополнительную плату
За дополнительную плату
Коробка дома на фундаменте под кровлей
Теплый контур без фасадной отделки
Теплый контур с фасадной отделкой
Коробка дома на фундаменте под кровлей
Теплый контур без фасадной отделки
Теплый контур с фасадной отделкой
18 Фундамент
Утепленная плита* , высота цоколя 450 мм, с утеплением 200 мм, с двойным армированием, подготовка песчаного основания 500 мм с прокладкой закладных гильз для ввода-вывода инженерных коммуникаций и устройством стяжки пола с системой жидкостного теплого пола.
Входит в комплектацию
Входит в комплектацию
Входит в комплектацию
28 Несущие и ограждающие конструкции
Наружные стены выполнены кладкой из керамического камня на клеевом растворе толщиной 380 мм.
Входит в комплектацию
Входит в комплектацию
Входит в комплектацию
Внутренние несущие стены выполнены кладкой из керамического камня на клеевом растворе толщиной 250 мм.
Входит в комплектацию
Входит в комплектацию
Входит в комплектацию
Устройство ж.б. пояса 120 мм по периметру несущих стен перед монтажом стропильной системы.
Входит в комплектацию
Входит в комплектацию
Входит в комплектацию
Стропильная система заводского изготовления (доска 45 × 195 мм, сухая, строганная) с применением балок из клееного бруса или бруса LVL.
Входит в комплектацию
Входит в комплектацию
Входит в комплектацию
Ветро-гидроизоляционная пленка с кровельной обрешеткой.
Входит в комплектацию
Входит в комплектацию
Входит в комплектацию
Контробрешетка кровельная из сухой строганной доски 45 × 45 мм.
Входит в комплектацию
Входит в комплектацию
Входит в комплектацию
38 Межэтажные (чердачные) перекрытия
Для одноэтажных домов чердачные перекрытия по деревянным балкам — доска 45 × 195 мм, сухая, строганная.
Входит в комплектацию
Входит в комплектацию
Входит в комплектацию
Монолитные ж/б межэтажные перекрытия 180–200 мм для двухэтажных домов.
Входит в комплектацию
Входит в комплектацию
Входит в комплектацию
48 Межэтажная лестница (для двухэтажных домов)
Деревянная — строительная (черновая, маршевая).
Входит в комплектацию
Входит в комплектацию
Входит в комплектацию
Монолитная ж/б лестница — строительная (черновая, маршевая).
За дополнительную плату
За дополнительную плату
За дополнительную плату
58 Кровельное покрытие
Кровельное покрытие из металлочерепицы Металл Профиль.
Входит в комплектацию
Входит в комплектацию
Входит в комплектацию
68 Утепление и звукоизоляция несущих и ограждающих конструкций
Утепление наружных стен минераловатными плитами, либо фасадным пенополистиролом в зависимости от варианта фасадной отделки.
Не входит в комплектацию
За дополнительную плату
Входит в комплектацию
Звукоизоляция межэтажных перекрытий — базальтовый утеплитель 150 мм, настил чернового пола из OSB-3 18 мм по пошаговой обрешетке 20 × 90 мм (в зависимости от выбранной конструкции межэтажных перекрытий).
Не входит в комплектацию
За дополнительную плату
Входит в комплектацию
Утепление стропильной системы минераловатным утеплителем 250 мм.
Не входит в комплектацию
Входит в комплектацию
Входит в комплектацию
78 Окна и двери
Оконные и балконные дверные изделия из ПВХ профиля VEKA Softline 70 мм, фурнитура — SIEGENIA AUBI TITAN_AF, двухкамерный стеклопакет — 4i-14a-4-14-4, микропроветривание, без противомоскитных сеток, цвет — белый/белый, без шпрос в стеклопакетах. Доставка и разгрузка до оконных проемов.
За дополнительную плату
Входит в комплектацию
Входит в комплектацию
Внешние дверные изделия Jeld-Wen — дверной блок входной, теплоизоляционный F2000, белый, глухой 21 × 9,1 мм, замок Abloy LС200, 3 петли с регулировкой в 2-х направлениях, порог с алюминиевой накладкой. Установка дверных доводчиков на внешние двери.
За дополнительную плату
Входит в комплектацию
Входит в комплектацию
Закрытие оконных и дверных проемов пленкой.
Входит в комплектацию
Не входит в комплектацию
Не входит в комплектацию
88 Фасадные работы и отделка на выбор
Фасадная отделка.
Не входит в комплектацию
За дополнительную плату
Входит в комплектацию
Отделка карнизных свесов, потолков террас и крылец.
Не входит в комплектацию
За дополнительную плату
Входит в комплектацию
Оформление оконных и дверных проемов, монтаж угловых наличников.
Не входит в комплектацию
За дополнительную плату
Входит в комплектацию
Подготовка и покраска мауэрлатных и коньковых балок.
Входит в комплектацию
Входит в комплектацию
Входит в комплектацию
Установка межэтажных металлических отливов (только для комбинированных фасадных отделок).
Не входит в комплектацию
Не входит в комплектацию
Входит в комплектацию
Устройство лаг пола для террасы. Отделка полов террасы террасной доской из лиственницы с ограждениями (для проектов, где терраса является конструктивным элементом дома).
Не входит в комплектацию
За дополнительную плату
Входит в комплектацию
Устройство лаг балкона и отделка полов балкона террасной доской из лиственницы с ограждениями.
Не входит в комплектацию
За дополнительную плату
Входит в комплектацию
Гидроизоляция полов балконов.
Не входит в комплектацию
Не входит в комплектацию
За дополнительную плату
Технический надзор.
Входит в комплектацию
Входит в комплектацию
Входит в комплектацию
Выезд инженера на строительный объект для привязки пятна застройки и оценки состояния участка и грунтов.
Входит в комплектацию
Входит в комплектацию
Входит в комплектацию
Проектная документация КЖ (конструкции железобетонные).
Входит в комплектацию
Входит в комплектацию
Входит в комплектацию
Проектная документация КД (конструкции деревянные).
Входит в комплектацию
Входит в комплектацию
Входит в комплектацию
Проектная документация АC (архитектурно строительные чертежи).
Входит в комплектацию
Входит в комплектацию
Входит в комплектацию
Инструкция по эксплуатации кирпичного дома.
Входит в комплектацию
Входит в комплектацию
Входит в комплектацию
Гарантия на все виды работ произведенные по договору строительного подряда — 5 лет.
Входит в комплектацию
Входит в комплектацию
Входит в комплектацию
Монтаж и доставка в пределах 50 км от КАД, МКАД.
Входит в комплектацию
Входит в комплектацию
Входит в комплектацию
Организация проживания рабочих.
За дополнительную плату
За дополнительную плату
За дополнительную плату
Уборка территории, погрузка мусора в пухто.
За дополнительную плату
За дополнительную плату
За дополнительную плату
Свайный фундамент — буронабивные сваи для террас.
За дополнительную плату
За дополнительную плату
Входит в комплектацию
Подготовка песчанного основания фундамента.
За дополнительную плату
За дополнительную плату
За дополнительную плату
Устройство дренажной системы.
За дополнительную плату
За дополнительную плату
За дополнительную плату
Устройство ливневой системы.
Не входит в комплектацию
Не входит в комплектацию
За дополнительную плату
Отделка цоколя фундамента искусственным камнем.
Не входит в комплектацию
Не входит в комплектацию
За дополнительную плату
Водосточная система.
Не входит в комплектацию
Не входит в комплектацию
За дополнительную плату
Вентиляционные кровельные проходные элементы.
За дополнительную плату
За дополнительную плату
За дополнительную плату
Снегозадержатели.
За дополнительную плату
За дополнительную плату
За дополнительную плату
Односторонняя ламинация оконных и внешних дверных изделий.
Не входит в комплектацию
За дополнительную плату
За дополнительную плату
Мансардные окна Velux.
За дополнительную плату
За дополнительную плату
За дополнительную плату
Люк чердачный Fakro утепленный 600 × 1200 мм.
Не входит в комплектацию
За дополнительную плату
За дополнительную плату
Молниезащита.
Не входит в комплектацию
Не входит в комплектацию
За дополнительную плату
Контурное заземление.
За дополнительную плату
За дополнительную плату
За дополнительную плату

Отделка фасада

Стоимость дома в различных фасадных отделках
Каркас
Газобетон
Кирпич
Каркас
Газобетон
Кирпич
Отделочная доска
Силикатная штукатурка
Силикатная штукатурка / отделочная доска
Лицевой кирпич 60 р./шт.
Кирпич 60 р./шт. / отделочная доска
Кирпич 60 р./шт. / штукатурка
План работ
"*Указанная стоимость строительства действительна в рамках одного строительного сезона."

"*Актуальная стоимость, уточняется на момент обращения в компанию после обсуждения комплектации и технологии строительства"

Как мы работаем

Наши цены — честные! Без «обязательных» доп. опций.

Наши цены, представленные на сайте, — честные, без «подводных камней» и «обязательных» доп.опций. Наши сметы максимально подробные и понятные, без «разводов».

Нам просто так удобно работать!

Нам некогда тратить наше драгоценное рабочее время на рекламные уловки. Мы заняты делом. Мы строим дома!

Цена — критерий качества

Если вы планируете построить настоящий надежный качественный теплый дом для постоянного проживания из хороших материалов с использованием современных технических решений и технологий, то сколько это может стоить?

Читать подробнее
Почему выезд специалиста на участок бесплатный?

Платные выезды на участок часто приводят к тому, что неопытный заказчик, оказавшись в затруднительной ситуации и одолеваемый огромным количеством вопросов о строительстве, не хочет идти к специалистам и часто оказывается в руках непрофессиональной бригады строителей. Мы искренне в том, что мы профессионалы и рады делиться опытом. Мы готовы встретиться с вами, продумать и проговорить вашу задачу. Если вы решите обратиться за реализацией к специалистам другой компании — у вас будет материал для постановки целей.

Почему наши дома не могут стоить дешевле?

Более 30 лет строительного стажа говорит о том, что доверять можно только надежным и проверенным материалам и поставщикам. А работы осуществлять добротно и по совести.

Читать подробнее
Не укладываетесь в бюджет?
Если мы решим вопрос с ценой, вы готовы начать строительство?
Если цена кажется неподъемной сейчас, как насчет поэтапной оплаты или кредита?
Вы, действительно, хотите отказаться от нашего предложения прямо сейчас?
Свяжитесь с нами, мы сможем сделать для вас хорошее ценовое предложение на надежный качественный дом.

График строительства дома

Ваши вопросы

«Давайте что-нибудь уберём из сметы?!»
Мы объясним, на каких аспектах строительства нельзя экономить и как оптимизировать смету, не потеряв в качестве и надежности строения. Если вам не нужен «полный фарш», мы расскажем, как сократить расходы на строительство за счет оптимизации материалов и на чем можно сэкономить, а на чем экономить ни в коем случае нельзя. Хорошая цена на дом — это тоже наша работа!
«А можно мы сами закупим материалы?»

Можно! Об этом мы слышим постоянно, ведь кто-то сам занят производством каких-либо стройматериалов, у кого-то друзья или родственники, а кому-то предложили хорошую скидку.

Но поверьте, 90% подобных случаев заканчивается звонком менеджеру и просьбой: «а может быть все-таки вы?» Ведь никто не справиться с задачей лучше опытного специалиста отдела закупок и логистики. Стоит ли тратить силы и экономить несколько тысяч рублей?

Хотя зачастую не получается даже экономии, поскольку закупочные цены для крупной строительной компании всегда ниже, чем для частных лиц.

«Конкуренты предлагают более низкую цену. Почему?»

Вы успели сравнить цены с конкурентами? Да, мы понимаем, что наше предложение может оказаться дороже, чем предложение наших конкурентов. И возможно наши шансы не слишком велики.

Но, как показывает опыт, подробное изучение комплектации конкурентов и того, что именно входит в заявленную ими цену, приводит к тому, что заказчики в финале своих изысканий удивляются почему же окончательная цена не соответствует заявленной изначально.

«А можно платить частями?»

Можно! И нужно!

Строительный процесс всегда разбит на несколько этапов. Мы не берем денег вперед за полный комплекс услуг. Наши клиенты оплачивают работу поэтапно после принятия каждого этапа и подписания акта выполненных работ по предыдущему.

«Сколько можно сэкономить в эксплуатации?»

Строительство надежного и долговечного дома — это сложный и затратный процесс. Сколько же вы можете сэкономить, приобретая наш продукт, в дальнейшей перспективе?

Для каждого дома по желанию заказчика мы рассчитываем паспорт энергобаланса дома, который позволяет оценить энергоэффективность дома и затраты на его эксплуатацию. За счет применения специальных строительных технологий оплата за совокупный расход электроэнергии в отопительный сезон даже при электрическом котле на площадь 200 кв.м может составлять не более 2000 рублей в месяц.

Мы прекрасно понимаем, что вам предстоят серьезные затраты. Но если вы не видите, как подобные инвестиции могут окупиться, то может быть и не стоит делать этих вложений?

Как заранее рассчитать сумму строительства загородного дома?
Если вы строите дом с единым подрядчиком, то все значительно просто — сумма строительства будет известна заранее, под нее берется кредит.
Как уложиться с проектированием, строительством, отделкой и коммуникациями в 24 месяца и успеть поставить дом на кадастровый учет?
Все работы надо планировать заранее, чтобы к моменту поступления средств от банка все было готово к началу строительства. Обеспечить это может опытный аккредитованный банком подрядчик.
Можно ли привлечь по данной программе несколько подрядчиков?
Нет, в рамках одной ипотеки договор может быть только с одной подрядной организацией.
Нужно ли оформлять документально начало строительства?

Да, обязательно уведомите местные власти о планах строительства, а потом о его завершении. Сделать это можно:

  • в МФЦ;
  • через портал Госуслуг;
  • напрямую в местную администрацию.
Требуется ли предоставить в банк Уведомление о соответствии объекта индивидуального жилищного строительства соответствующим параметрам?
Нет. В Альфа-банк не требуется, даже если есть ограничения по ст. 56 ЗК РФ.
Расскажите мне про проект "Аврора 16"
Наш менеджер свяжется с вами и расскажет о технологиях, ценах, сроках.
Выберите регион
Этот сайт защищен reCAPTCHA, и к нему применяются Политика конфиденциальности Google и условия предоставления услуг. (This site is protected by reCAPTCHA and the Google Privacy Policy and Terms of Service apply.)